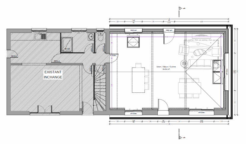
Extension dans le prolongement d’une longère

Création d’une belle pièce de vie, avec un espace cuisine, séjour et salon.

Un projet ? Une idée ?

Description du projet

Extension dans le prolongement d’une longère : Création d’une belle pièce de vie, avec un espace cuisine, séjour et salon.

De belles baies vitrées apportent un maximum de luminosité. La façade principale est habillée de pierre de taille, récupérées sur place.

Sur ce projet, notre mission s’arrête au dépôt de permis. Notre client se charge de l’ensemble des travaux.

 

Mais avant d’en arriver au dépôt de permis, il a fallu plusieurs étapes : tout d’abord un relevé de côtes de l’existant (bien souvent en rénovation, il n’y a pas de plans d’origine !) Puis il a fallu prendre en compte les souhaits de notre client, tout en veillant à respecter la règlementation en vigueur (PLU). Ensuite une esquisse a été proposée, jusqu’au projet final.

  • Relevé de cotes de l’existant
  • Analyse des PLU et règlementations en vigueur
  • Prise en compte des souhaits client
  • Esquisse
  • Avant-projet
  • Accompagnement administratif pour étude thermique RE2020
  • Dépôt de permis de construire

Détails du projet

Type de projetExtension
ClientParticulier
Date d’achèvementDépôt de permis
Surface55m²
Lieu Montviron

Account details will be confirmed via email.